Prix
à partir de 169.891€







La résidence Symone By Adonis Prestige 4* profite d’un accès rapide par le front de mer au centre de Nice, à quelques minutes à pied de la Promenade des Anglais.
Situé dans le quartier Grand Arénas, ce programme est idéalement placé : il s’agit du 1er centre d’affaires international des Alpes-Maritimes. En 2025, le nouveau Palais des congrès va ouvrir ses portes et en 2028 ce sera le tour du pôle d’échanges multimodal.
Ce pôle multimodal comprendra : une gare ferroviaire (TGV+TER), une gare routière, le tramway, une station de vélos et l’accès direct à l’aéroport par des voies dédiées.
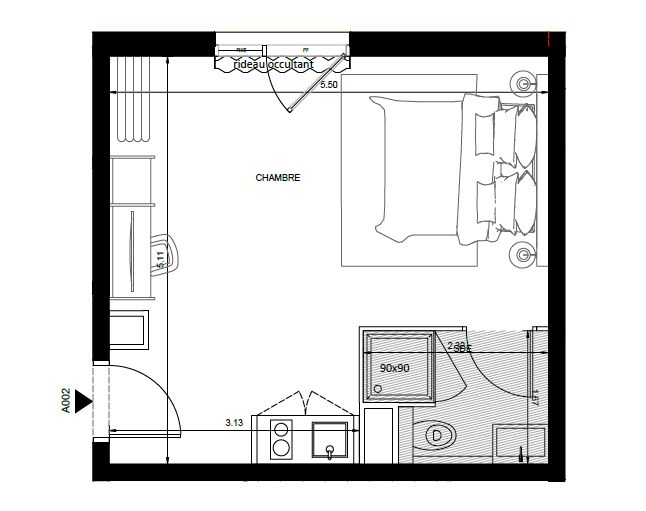
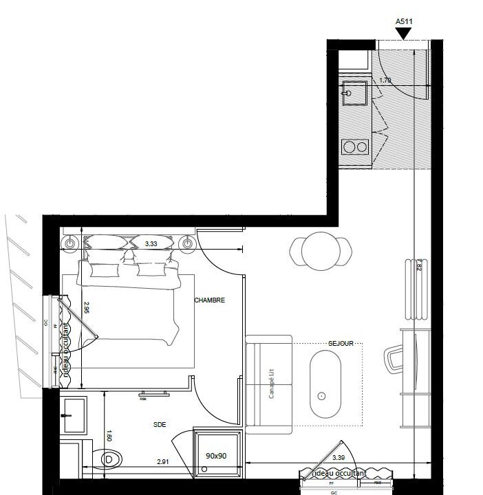
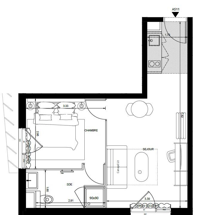
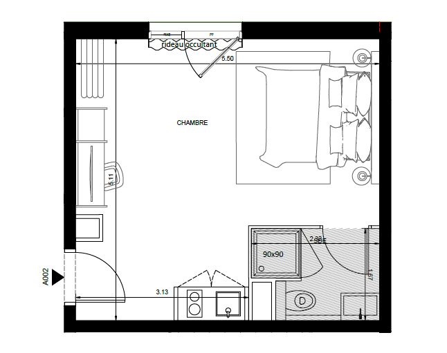
La résidence propose une gamme d’appartements « prestige » (du studio au 2 pièces) pour des séjours originaux autour de l’univers du gaming: idéal pour les séjours d’affaires, le tourisme de courte ou longue durée.
Elle offre de nombreux espaces communs :
RDC DE 480 M2 :
– salle de petit déjeuner de 132 m2
– hall d’accueil/salon de 100 m2
– co-working, salle de sport, salle de réunion
– espace détente et bien-être
– cuisine, bureaux, bagagerie, lingeries
ROOF TOP DE 95 M2 : piscine extérieure, bar, plage, sanitaires
Chaque logement dispose de volumes spacieux, d’un espace de travail, avec une décoration pensée de manière ludique et fonctionnelle.